Acton Town Hall Regeneration: Blueprints
All the details for you to pour over
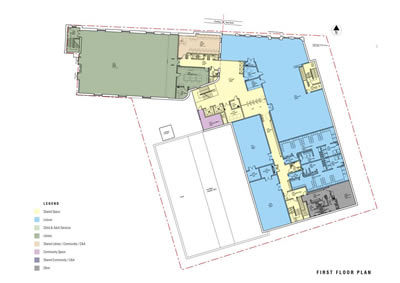
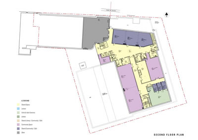
Here's some more info about the planned development of the Town Hall complex.
Ground floor

First floor
Second floor
An architectural sketch
Big versions of the images from a couple of days ago:

February 3, 2012
|