Grooming and daycare business with puppy creche to launch in basement car park

Westfield is to have its own luxury dog hotel in 2019.
H&F Council has given its approval to a planning application for the proposed
change of use of an area on Level 30 of its
basement car park from car parking to a dog grooming and day care business.
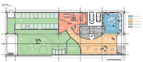
The plans, submitted by agents Montagu Evans on behalf of Westfield Europe, include these pictures, drawn up by locally based
Opera Architects.
The dog hotel is to be operated by Urban Mutts Hotels, a local business based in Fulham. The business will
offer premium dog day and overnight care in a state of the art facility, where Westfield customers and
local residents will benefit from being able to drop their dog off for either day-care and/or overnight care, with
daily walks to local parks and being looked after by one of the dedicated dog carers.

The unit will be split into a number of areas, as shown within the outline proposals document. The majority of
this will be taken up by a play area and the huts, with around 18 in total (each with their own heating and cooling,
as well as direct CCTV access for owners to check on their dog via an online website).
The application says that Urban Mutts Hotels is a unique concept in the dog day care industry offering a large range of services including
the first and only hydro-therapy treadmill, massages and grooming and a puppy crèche, as shown on the outline
plans. The business will also include the retail sale of merchandise from the unit.
Staff and service areas are provided within the unit, including toilets, kitchen and storage. The business will be
able to accommodate 20-25 dogs per day and will employ a total of ten members of staff (two receptionists, four
dog carers, two overnight carers, 2 x directors).
Urban Mutts runs on a membership system and every dog will be vetted through a consultation process
beforehand, for health and safety reasons.
The majority of customers are likely to be visitors to Westfield London and will therefore access the business by
car, but also through the existing lift lobbies which lead directly from the main shopping mall. There are safe
delineated walkways to the facility from the Southern Terrace entrance, next to Waitrose.
The main trading hours for customers will be 7am till 10pm, although boarding services for dogs operate 24/7.
Out of hours access to the premises will be provided through fixed entry and exit points.
You can see the full application and supporting documents here.

December 10, 2018
|